/
【外観】ご見学可能です。
- 専有面積
- 74.37㎡
- 築年月
- 2008年7月(築17年)
- ※事前に必ずお問い合わせください
- オープンルーム開催中!ご見学時間をご連絡ください。

リビング
和室
キッチン
バルコニー
風呂- 管理費
- 13,000円
- 修繕積立金
- 10,170円
- 修繕積立基金
- -
- 間取り / 詳細
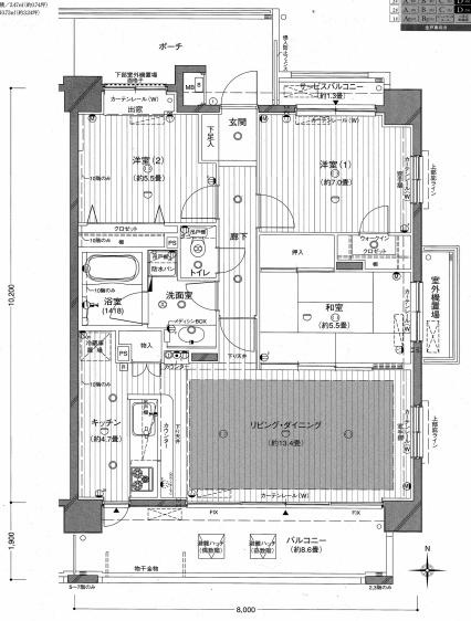
- 3LDK
- 向き
- 南
- 専有面積
- 74.37㎡
- バルコニー面積
- -
- その他面積
- -
-
- - 所在階 / 階建て
- 6階 / 11階建
- 建物構造
- 鉄筋コンクリート
- 築年月
- 2008年7月(築17年)
- 種別
- 中古マンション
- 駐車場 /
月額料金 - 空有(1台) -
- 土地権利
- 所有権
- 土地
(敷金 / 保証金) - - / -
- 国土法届出要否
- 不要
- 接道状況
- -
- 用途地域
- 近隣商業
- 地勢
- -
- 都市計画
- 市街化区域
- 現況
- 空家
- 引渡し
- 即時
- 取引態様
- 仲介
- 棟総戸数
- 41戸
- 管理形態
- 管理会社に全部委託
- 管理会社 /
管理組合有無 - - / -
- 取引条件の
有効期限 - 2026年01月29日
- 設備条件
-
- オープンルーム
- 設備(その他)
-
-
-
- 物件番号
- 98393231
- 管理コード
- 156701-15717
- 建築確認番号
- -
- 情報更新日
- 2026年01月15日
- 次回更新予定日
- 2026年01月29日
- 取扱会社
-
- センチュリー21ゼクストプラン
- 群馬県前橋市天川町2-7
- TEL:0120-655-880
- 群馬県知事 (2) 第7383号
- 月々の支払額
- 9.6円
- 購入希望物件価格
-
万円
- 頭金
-
万円
- 金利
-
%
- 返済額(ボーナス1回分)
-
万円
- 返済期間
-
年
オープンルーム
日時
2026年1月5日 ~ 2026年3月29日 9:00 ~ 21:00
セールスポイント
■6階角部屋
■駐車場一台無料です。
■本日ご対応可能!■当日のご相談予約はお電話がスムーズ
ポイント
パノラマ画像
基本情報
設備条件
その他
支払いシミュレーション
※ボーナスは自動で年2回分で計算されます。
近隣の物件
モナーク伊勢崎
1,800万円
13,000円
3LDK(74.37㎡)